Explore what is happening above the ceiling in a typical Florida home through real attic photos, thermal imaging, and insulation measurements. This article examines roof trusses, insulation performance, and heat transfer in hot humid climates, and how modern construction differs from older homes in comfort and energy efficiency.
Category Archives: Tips & Advice & FAQs
I Wish I Had Called an Architect First
If you’re planning a home remodel or addition in Florida, the first person you talk to can completely shape how your project unfolds—and sometimes, limit what you think is even possible. Designing a home is really about designing for how you actually live. And the conversations you have at the very beginning tend to setContinue reading “I Wish I Had Called an Architect First”
Exploring Solar for Florida Forever Homes
Curious about solar in Florida? In this first blog of a series, I explore why solar makes sense for forever homes, the variety of systems available, and how homeowners can use panels and batteries for comfort, backup power, and efficiency. Join me as we explore solar solutions together.
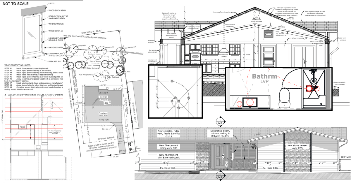
Avoiding Regrets in Your Forever Home: Lessons Learned From Real Projects
Avoid common regrets in your Forever Home remodel or addition. Learn from real projects how thoughtful design — from vaulted ceilings to Florida-friendly storage and upgraded bathrooms — can transform comfort, flow, and long-term happiness. Plan ahead today for a home that feels right now and decades from now.
Entertaining in Your Florida Forever Home: A Day in the Life
Experience a day in a Florida Forever Home, from morning coffee on the sunlit lanai and peaceful paddles on the river, to book club lunches with friends, poolside family dinners, and quiet evenings crafting. Thoughtful design, indoor-outdoor flow, and flexible spaces make entertaining, hobbies, and family time effortless and joyful.
Budgeting Construction Costs for Your Forever Home
Planning a remodel or addition for your Forever Home? Start with a realistic budget! Learn how to estimate construction costs early, understand factors that influence price, and make smart design decisions before construction begins.
Multigenerational Living — Making Space for Family & Friends
Discover how multigenerational living can be joyful and practical. Drawing on my own childhood and design experience, this article explores bedrooms, bathrooms, storage, and outdoor spaces that balance togetherness and privacy. Learn how thoughtful planning transforms a house into a Forever Home that adapts to family life and creates lasting memories.
Pick the Right Contractor for Your Forever Home Remodel or Addition
Choosing the right Contractor is key for a smooth remodel or addition. Learn how to research, evaluate, and trust the right professional — with real-life homeowner examples — to ensure your Forever Home is built with care.
Tariffs, Supply Chains, and Interior Products: What Homeowners Should Know
This article explains how global supply chains impact interior products like cabinetry, flooring, and appliances. It covers COVID-related delays, ongoing price increases, and offers practical tips for homeowners to manage selections, stay flexible, and avoid surprises during remodeling or building projects.
Tariffs and Supply Chains: What Homeowners Should Know
Unexpected tariffs and global supply chain disruptions can cause sudden spikes in construction material prices, impacting your building or remodeling budget. Understanding these factors and having clear contract terms can help you plan smarter and avoid surprises during your project.
